Описание квартиры в "ЖК "Ометьевский Парк""
Предлагается 1-комнатная квартира в новом жилом комплексе "ЖК "Ометьевский Парк"" 🏢.
Квартира расположена на 2-м этаже 10-этажного дома.
Отличный вариант для комфортной жизни.
Удобная планировка
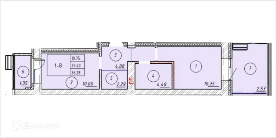
- ✅ Общая площадь: 36.28 м².
- ✅ Светлая жилая площадь: 10.75 м².
- ✅ Кухня: 10 м² — эргономичное пространство.
Особенности квартиры
- 🔧 Вариант отделки: грубая отделка. Это позволит вам сразу приступить к ремонту.
- 🌞 Панорамное остекление наполняют помещения естественным светом.
- 🌿 Класс жилья: Комфорт — современные технологии.
Выгодные условия покупки
- 💳 Ипотека от 65 313 руб/мес.
- 🏦 Доступны льготные программы господдержки.
- 🤝 Эскроу-счета гарантирует спокойствие.
Чтобы забронировать эту квартиру бесплатно и проверить актуальную стоимость — позвоните нам прямо сейчас! 📞
Характеристики новостройки в ЖК "Ометьевский Парк"
- Номер квартиры: 108
- Вариант отделки: грубая отделка
- Общая площадь: 36.28 м²
- Жилая площадь: 10.75 м²
- Площадь кухни: 10 м²
- Класс жилья: Комфорт
- Количество комнат: 1-комнатная квартира
- Этаж: 2
- Этажность дома: 10
Полезная информация о ЖК "Ометьевский Парк"