Обзор квартиры в "ЖК по ул. Аделя Кутуя"
Доступна к покупке 2-комнатная квартира в современном жилом комплексе "ЖК по ул. Аделя Кутуя" 🏢.
Квартира расположена на 6-м этаже 25-этажного дома.
Отличный вариант для инвестиций.
Продуманная планировка
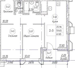
- ✅ Общая площадь: 61.85 м².
- ✅ Просторная жилая площадь: 25.96 м².
- ✅ Кухня: 17.65 м² — место для кулинарных шедевров.
Особенности квартиры
- 🔧 Вариант отделки: предварительная отделка. Минимум грязных работ.
- 🌞 Увеличенные оконные проемы наполняют помещения естественным светом.
- 🌿 Класс жилья: Комфорт — благоустроенная территория.
Финансы и ипотека
- 💳 Ипотека от 97 984 руб/мес.
- 🏦 Подходит под семейную и IT ипотеку.
- 🤝 Покупка напрямую от застройщика гарантирует спокойствие.
Чтобы забронировать эту квартиру бесплатно и проверить актуальную стоимость — свяжитесь с нами прямо сейчас! 📞
Характеристики новостройки в ЖК по ул. Аделя Кутуя
- Номер квартиры: 37
- Вариант отделки: предварительная отделка
- Общая площадь: 61.85 м²
- Жилая площадь: 25.96 м²
- Площадь кухни: 17.65 м²
- Класс жилья: Комфорт
- Количество комнат: 2-комнатная квартира
- Этаж: 6
- Этажность дома: 25
Полезная информация о ЖК по ул. Аделя Кутуя