Казань, улица Аделя Кутуя, 181
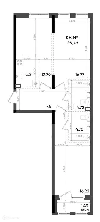
Площадь
Жилая
Кухня
Отделка
Класс жилья
Комнат
Номер кв.
Этаж
В продаже 3-комнатная квартира в новом жилом комплексе "ЖК Адали" 🏢. Квартира расположена на 2-м этаже 25-этажного дома. Отличный вариант для семьи.
Для бесплатного бронирования и зафиксировать цену — свяжитесь с нами прямо сейчас! 📞
«Адали» – это современный жилой комплекс бизнес-класса для амбициозных людей, тех, кто любит открывать новое и не боится перемен. Яркая архитектура, гибкие планировки, пешая доступность Горкинско-Ометьевского леса и станции метро «Горки» – ваша жизнь в «Адали» будет наполнена радостью и вдохновением.
Срок сдачи: 4 кв. 2027 г.
Срок сдачи: 4 кв. 2027 г.
Площади квартир
Этажность
Класс жилья
Корпусов
Стены