Республика Татарстан, Набережные Челны, Новый Город м-н, Шамиля Усманова, 1а ст6
Площадь
Жилая
Кухня
Отделка
Класс жилья
Комнат
Номер кв.
Этаж
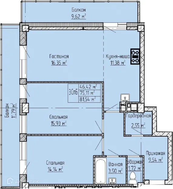
Предлагается 3-комнатная квартира в новом жилом комплексе "ЖК Панорама" 🏢. Квартира расположена на 3-м этаже 21-этажного дома. Отличный вариант для семьи.
Для бесплатного бронирования и проверить актуальную стоимость — позвоните нам прямо сейчас! 📞
Дом расположен в 33 микрорайоне г.Набережные Челны рядом с зданием отдела полиции №4 «Электротехнический», с развитой инфраструктурой: В шаговой доступности все необходимое для комфортного проживания : остановки общественного транспорта, школы, садики, магазины, торговые центры, аптеки и медицинские учреждения. Уютный двор с современной детской площадкой. Парковка во дворе на 181 машин/место. 18 жилых этажей. Комфортные планировки на любой вкус площадью от 18 до 82 м.кв. Витражные остекления лоджий. Высота потолков 2,7 м. Скоростные грузовой и пассажирский лифты Meteor. В продаже имеются кладовые помещения в подвальном этаже.
Срок сдачи: 2 кв. 2026 г.
Срок сдачи: 2 кв. 2026 г.
Площади квартир
Этажность
Класс жилья
Корпусов
Стены