Обзор квартиры в "ЖК ПаркМаяк"
Продается 2-комнатная квартира в новом жилом комплексе "ЖК ПаркМаяк" 🏢.
Квартира расположена на -м этаже 18-этажного дома.
Прекрасный выбор для семьи.
Удобная планировка
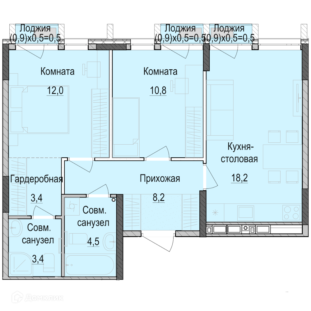
- ✅ Общая площадь: 61 м².
- ✅ Просторная жилая площадь: 23 м².
- ✅ Кухня: 18 м² — место для кулинарных шедевров.
Преимущества квартиры
- 🔧 Вариант отделки: без отделки. Минимум грязных работ.
- 🌞 Увеличенные оконные проемы наполняют помещения естественным светом.
- 🌿 Класс жилья: Комфорт — современные технологии.
Выгодные условия покупки
- 💳 Ипотека от 73 826 руб/мес.
- 🏦 Доступны льготные программы господдержки.
- 🤝 Безопасная сделка гарантирует спокойствие.
Для бесплатного бронирования и проверить актуальную стоимость — позвоните нам прямо сейчас! 📞
Характеристики новостройки в ЖК ПаркМаяк
- Номер квартиры:
- Вариант отделки: без отделки
- Общая площадь: 61 м²
- Жилая площадь: 23 м²
- Площадь кухни: 18 м²
- Класс жилья: Комфорт
- Количество комнат: 2-комнатная квартира
- Этаж:
- Этажность дома: 18
Полезная информация о ЖК ПаркМаяк