Казань, улица Хади Атласи, 30 стр
Площадь
Жилая
Кухня
Отделка
Класс жилья
Комнат
Номер кв.
Этаж
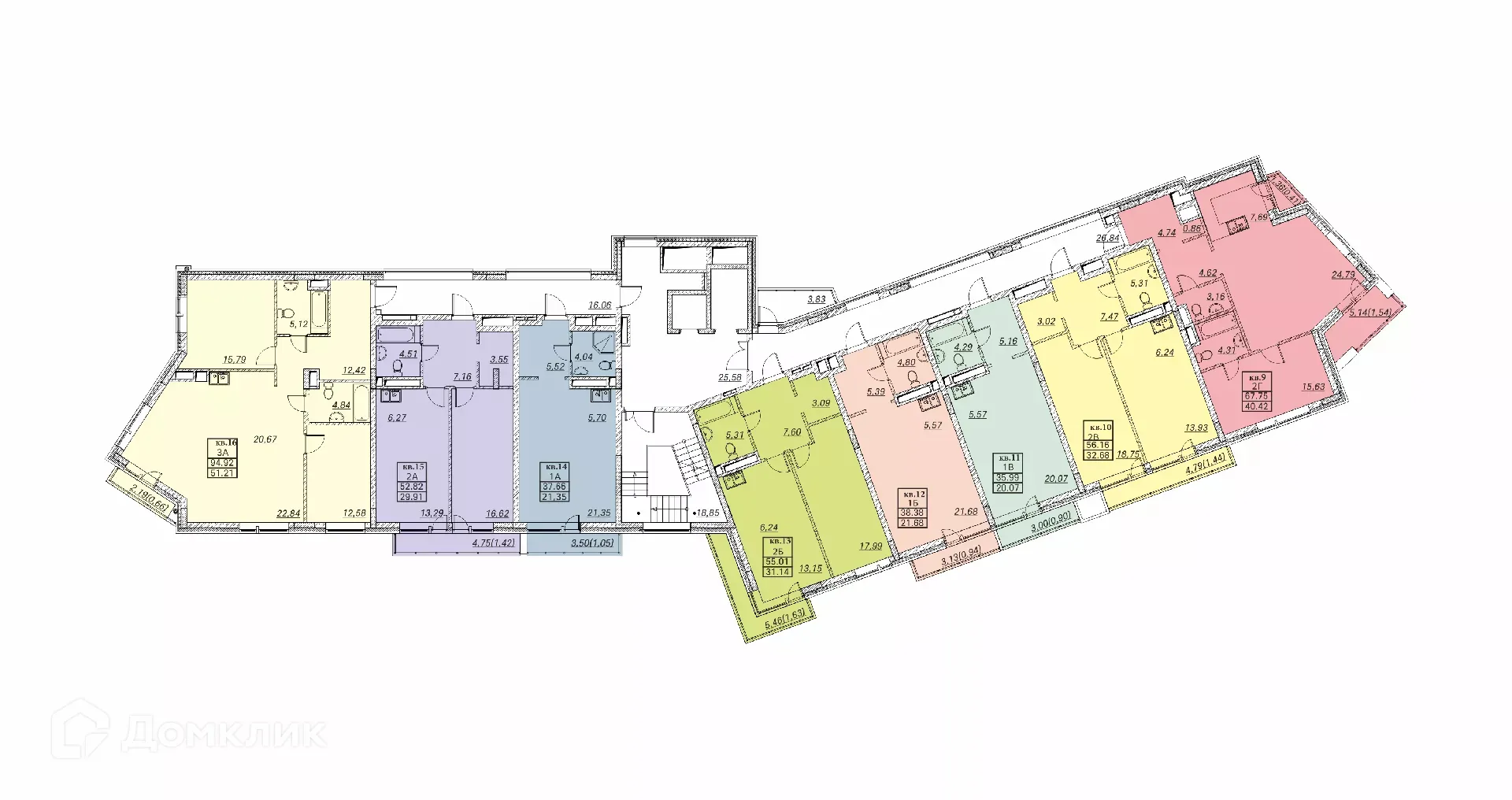
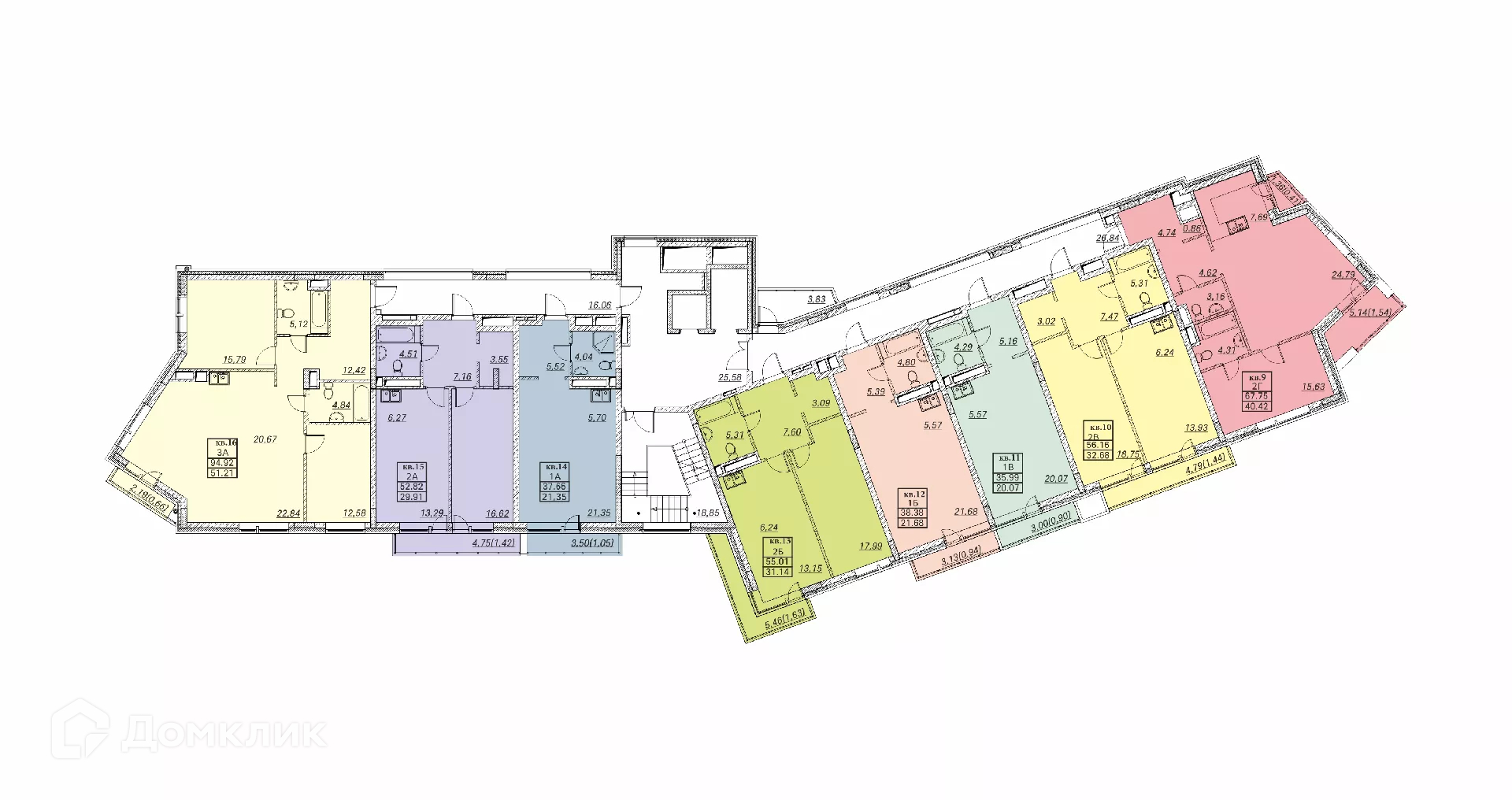
В продаже 2-комнатная квартира в востребованном жилом комплексе "ЖК Дом по ул Хади Атласи" 🏢. Квартира расположена на 2-м этаже 10-этажного дома. Прекрасный выбор для семьи.
Чтобы узнать подробности и зафиксировать цену — свяжитесь с нами прямо сейчас! 📞
ЖД на Хади Атласи расположен в историческом и деловом центре Вахитовского района города Казани. Застройщик дома: ООО «Специализированный застройщик «Стройресурс Инвест». Выгодное местоположение и транспортная доступность.Школы и детские сады, подземный паркинг. Самое главное достоинство проекта – все необходимое для жизни и работы находится в шаговой доступности! На старте продаж дома, объявлены специальные цены для первых покупателей. Действует траншевая ипотека.
Срок сдачи: 2 кв. 2025 г.
Срок сдачи: 2 кв. 2025 г.
Площади квартир
Этажность
Класс жилья
Корпусов
Стены